• 装房子,到汇川雅阁比较后再决定!
  • 关注微博

    使用微博扫一扫

  • 微信服务

    使用微信扫一扫

当前位置:装修案例 > 装修案例详情

东原华宇朗阅实景案例——将布局赋予艺术,空间增添色彩

2000
200
  • 项目名称:
    东原华宇朗阅
  • 项目地址:
    四川省绵阳市
  • 房间户型:
    四室两厅两卫
  • 设计面积:
    100-140㎡
  • 装修风格:
    轻奢
  • 设计师:

前言

Foreword

色彩,是带给人视觉的美味调味品;而艺术,又赋予了人生活的更多滋味。所以在本套案例中,汇川雅阁装饰设计师将布局赋予艺术,空间增添色彩,四人居也可以变得温馨多彩。



业主需求

Owner demand

屋主为一对夫妇带着一儿一女,常住人口为四人,业主是一个追求色彩丰富搭配的理想主义者。在对于自家房屋的空间布局上,就只有一个简单的要求,那就是布局新颖赋予艺术感。



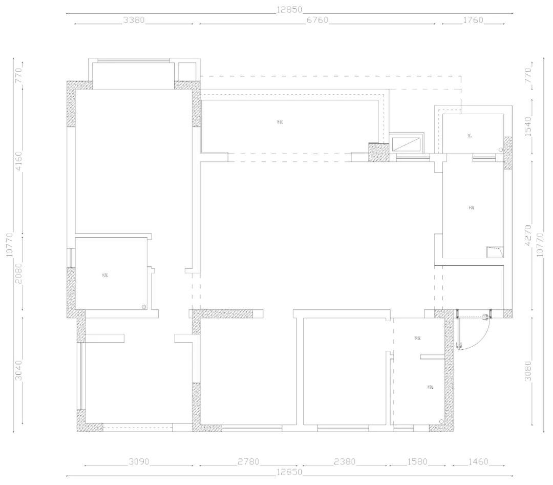
改造思路:

设计师将卫生间区域进行了新颖的改造,把开放式盥洗间、储物间与淋浴房分开,对于多口之家来讲,生活上提供了便捷性与隐私性。

②男孩房中,拆除掉原本空间内的部分墙体,让区域更加宽敞明亮,给房间内添置衣柜,孩子的生活空间也变得更大。

③依旧拆除掉休闲阳台原本墙体,将客厅与阳台连接为一体,家具摆放与整体布局的新颖感得到实现。



1659518113553844.jpg





A living room | 客厅

客厅区域是整个空间中最赋有色彩与生活感的区域,嵌入式电视墙采用格栅进行搭配。

电视柜采用木饰面板,让区域内拥有更多储物空间。

特别需要提到一点的是,在此区域中运用隐形门的设计,美化整个空间,让局部的空间与整体的风格统一,并且兼顾隐私性。


DSC01846.jpg


一字型米色沙发与黄色懒人沙发搭配,给空间平添了几分生气。

岩板双圆形茶几用于摆放客厅的一些小物品。

客厅内采用无主灯设计,代替传统单一的大吊灯,让空间内实现多种光源组合搭配。

落地灯作为装饰,让客厅更有层次感,极具生活的格调。




Dining room | 餐厅

餐厅区域采用白色岩板现代餐桌,简约风格的现代餐椅,满足四口之家的用餐需求。

区域内采用线性灯带与筒灯作为照明工具,流畅的线条打破视觉上的空间局限,营造一个良好的用餐环境。

定制香槟色餐边柜,一部分做了玻璃门,可放置红酒又满足储藏物品的需求,同时预留灯带,层次感十足。




Kitchen | 厨房

封闭式厨房,采用玻璃门作为阻隔,烹饪时,不让空间中的油烟溢出。

定制”L“型橱柜,洗、切、炒操作起来便利,活动路线明确。

吊柜增加了更多储物空间,在其下方预留灯带,照亮操作台面,洗菜与切菜不背光,烹饪时也可以更加放心。

空间顶部除了采用线性灯带外,利用大扣板吊顶,大气又美观。




Master Decubitus | 主卧

主卧中咖色与米白色为主色调,背景墙采用硬包装饰与定制衣柜色调一致,让室内整体变得温馨舒适。现代白色床简单大方,搭配白色床头柜与白色茶几。

空间内使用长线吊灯,提升了主卧的整体格调,调节空间的品质,更有生活的品质。

主卫空间色彩鲜明,梳妆台与洗手盆一体,更具整体性。同时安装大尺寸的浴室镜,延展视野,让区域更加通透明亮。






The Children’s  room | 儿童房图片

男孩房灰色、白色与深棕色为主色调,购置简约风格灰色大床,金属风格长线吊灯点缀于此,特别定制了书桌,满足收纳与孩子学习的需求。

室内利用窗帘盒安装窗帘,美观且遮光效果良好。

女孩房采用温馨舒适的淡粉色,少女感十足。

浅咖色现代大床为孩子营造一个温暖的栖息地,铃兰吊灯与小壁灯满足不同的生活所需。


DSC01807.jpg




Bathroom | 卫生间

在前面我们提到,业主有一个需求,那就是要有新颖的布局方式。

在卫生间这个区域中,设计师就采用了特别的布局方式,将洗衣房与淋浴间隔开。开放式的卫生间给家中的生活增添了几分便利,早晚也不会特别拥挤。